Max
Max
Piscine
Jardin
Terrasse
Balcon
Garage
Sous-sol
Cave
Digicode
Dernier étage
Accès handicapé
0Km 200Km

Découvrez d'autres maisons 3 pièces à vendre aux alentours de Neuville-sur-Saône

EXCLUSIVITÉ
EN EXCLUSIVITÉ - MAISON EN COPROPRIETE AVEC TERRASSE ET JARDIN SECTEUR VANCIA
Maison 3 pièces 70.05 m² 6
RILLIEUX LA PAPE 69140
319 500 €
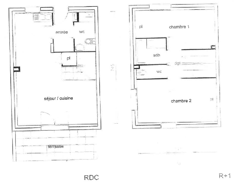
Située dans le secteur très recherché de Vancia à Rillieux-la-Pape, cette agréable maison mitoyenne en duplex de 70 m² saura vous séduire par son environnement résidentiel, son calme et sa luminosité. Implantée au sein d'une copropriété de 2016, bien entretenue, elle offre un cadre de vie idéal pour une famille ou un couple recherchant la tranquillité tout en restant à proximité immédiate de Lyon.

Au rez-de-chaussée, vous découvrirez une entrée desservant un séjour lumineux ouvrant sur l'extérieur, une cuisine équipée ainsi qu'un water-closet. L'agencement est fonctionnel et agréable, avec une belle clarté naturelle tout au long de la journée.

À l'étage, l'espace nuit se compose de deux grandes chambres confortables, d'une salle de bains avec WC et d'un palier permettant une circulation fluide entre les pièces et offrant de nombreux rangements.

La maison bénéficie du droit à la jouissance exclusive d'une terrasse et d'un jardin d'environ 35 m², idéal pour profiter des beaux jours, organiser des repas en extérieur ou créer un espace détente.

En complément, vous disposerez d'un box fermé, d'une cave ainsi que d'une place de stationnement privative, un véritable atout sur le secteur.

Le quartier de Vancia est particulièrement apprécié pour son ambiance village, son environnement calme et résidentiel, ses espaces verts et sa proximité avec les écoles, commerces et transports. L'accès rapide aux axes routiers permet de rejoindre facilement Lyon, la Croix-Rousse et les zones d'activités environnantes.

Maison lumineuse et fonctionnelle, située dans un cadre privilégié, offrant un beau potentiel et le confort d'une copropriété sécurisée.

À voir sans tarder.

GUY HOQUET L'IMMOBILIER, l'agence immobilière spécialiste de RILLIEUX LA PAPE 04 78 88 05 05.
Achat appartement Rillieux-la-Pape, vente appartement Rillieux-la-Pape, location, gestion locative: maison, appartement, terrain.
Information prix au m² et estimation offerte de votre bien immobilier sur simple demande.
Maison Beynost 3 pièces 70 m² avec jardinet
Maison 3 pièces 70 m² 12
BEYNOST 01700
240 750 €
Découvrez cette agréable maison située au coeur de Beynost, dans un environnement pratique et recherché, à proximité immédiate des transports, des commerces et des écoles. Un lieu de vie idéal pour profiter du calme tout en restant connecté aux commodités.
Dès l'entrée, vous serez accueilli par une belle pièce de vie conviviale composée d'un salon chaleureux et d'une cuisine ouverte entièrement équipée, parfaite pour partager des moments en famille ou entre amis. Un placard d'entrée et un WC viennent compléter ce niveau pour plus de confort au quotidien.
Un dégagement permet également d'accéder directement au garage ainsi qu'à une spacieuse cave d'environ 33 m², idéale pour le stockage ou pour créer un espace supplémentaire selon vos besoins.
À l'étage, l'espace nuit vous propose deux chambres baignées de lumière, offrant un cadre reposant, ainsi qu'une salle de bains fonctionnelle.
À l'extérieur, profitez d'une cour privative d'environ 60 m², parfaite pour vos repas en plein air ou vos moments de détente, accompagnée d'un jardinet d'environ 25 m² qui apportera une touche de verdure à votre quotidien.

GUY HOQUET L'IMMOBILIER de Miribel l'agence immobilière spécialiste de la côtière 04 72 25 40 00.

Achat maison BEYNOST / Vente maison BEYNOST / location/gestion appartement, maison, terrain BEYNOST. Prix / m² BEYNOST. Estimation offerte de votre bien immobilier sur simple demande.
.
Charmante Maison T3 avec jardin, garage, et cave Villeurbanne à proximité de Montchat (69100)
Maison 3 pièces 59 m² 12
VILLEURBANNE 69100
278 000 €
Dans un environnement calme et recherché, à deux pas du secteur prisé de Montchat, découvrez cette agréable maison T3 de 58m², édifiée sur une belle parcelle de 330 m², offrant un cadre de vie idéal entre confort, fonctionnalité et extérieur privatif.

En bon état général, cette maison pleine de charme propose une distribution optimisée avec :

- Un séjour lumineux et convivial
- Une cuisine fonctionnelle
- Deux chambres confortables
- Une salle d'eau pratique et bien agencée
- Climatisation installée pour un confort optimal été comme hiver

Côté annexes et extérieurs, vous profiterez de véritables atouts rares sur le secteur :

- Jardin privatif arboré, idéal pour les beaux jours
- Garage fermé
- Cour privative permettant stationnement de plusieurs voitures ou espace détente
- Grande cave de 20 m², idéale pour stockage ou atelier, avec un espace cave à vin aménagé pour les amateurs et collectionneurs.

Cette maison séduira aussi bien un couple, une petite famille, qu'un investisseur recherchant un bien avec extérieur dans un emplacement de qualité, proche des commerces, transports, écoles et de toutes les commodités.

Un bien rare sur le secteur, à visiter sans tarder !

----------------------------------

Pour plus d'informations sur ce bien, référence L3-1320 :

Guy Hoquet Lyon 3 Montchat :
58 cours Docteur Long 69003 Lyon

Contact : Lucas Strique

Tél : 04 37 56 78 07
Mail : lyon3@guyhoquet.com

Vous avez un projet ou simplement besoin d'une estimation, nous vous offrons notre expertise en vous garantissant un prix de vente et un délai de vente.

Maisons 3 pièces vendues récemment à Neuville-sur-Saône

Affiner votre recherche d'achat de maison à proximité de Neuville-sur-Saône :

Neuville-sur-Saône

Proche de Neuville-sur-Saône

Nos conseils pour acheter votre maison

Vous souhaitez être accompagné.e pour votre achat ?

Vous voulez vendre votre maison à Neuville-sur-Saône ?

Faites-vous accompagner par un professionnel de l'immobilier pour vendre votre maison plus rapidement et plus efficacement. Contactez dès à présent l'agence Guy Hoquet la plus proche de chez vous !