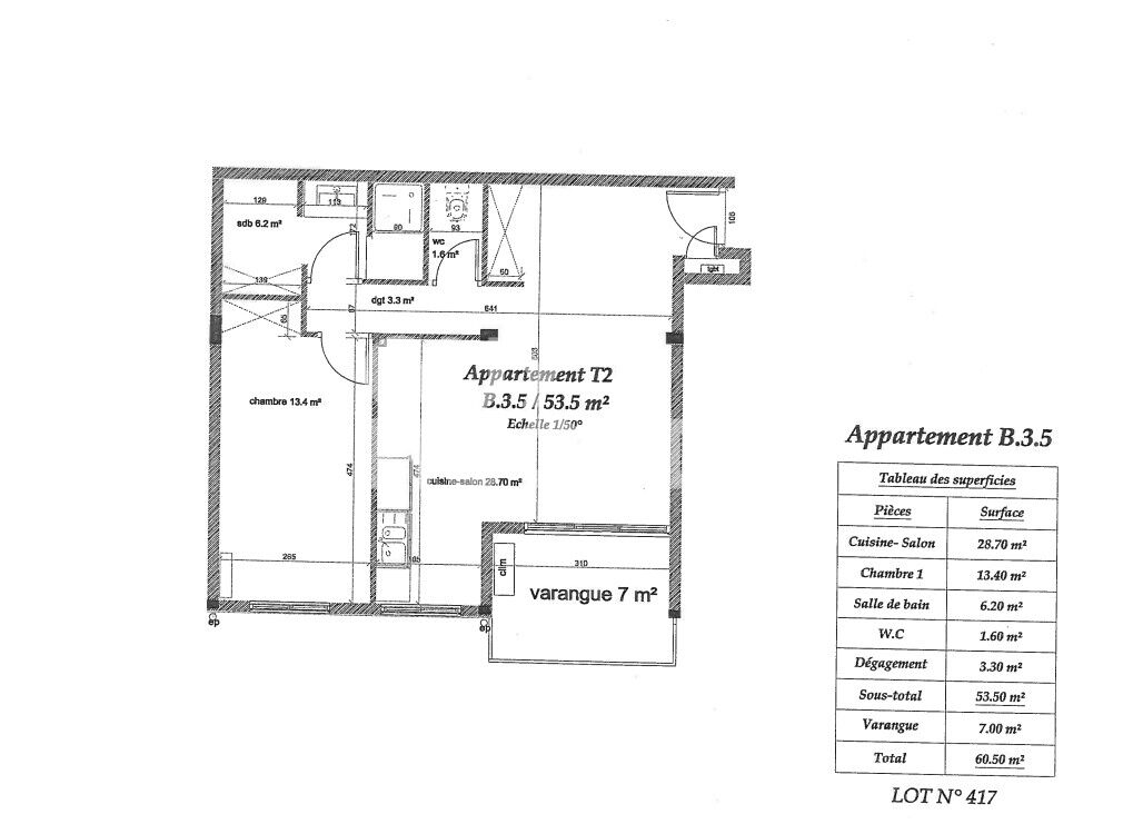
Appartement Cayenne 2 pièce(s) 53.50 m2
CAYENNE 97300
124 700 € *
* Honoraires à la charge du vendeur
Réf : 2118
A l'entrée de Cayenne, proche chez Nana, dans une résidence de 2011, en mixité locative et résidentielle,
Découvrez ce 2 pièces de 53.50m² au 4eme étage avec ascenseur, bénéficiant d'une varangue de 7m², une salle d'eau avec coin buanderie, séparée... Voir plus
53.5 m²
2 pièce(s)
1 chambre(s)
1 sde
Appartement Cayenne 2 pièce(s) 53.50 m2
Descriptif
Réf : 2118
A l'entrée de Cayenne, proche chez Nana, dans une résidence de 2011, en mixité locative et résidentielle,
Découvrez ce 2 pièces de 53.50m² au 4eme étage avec ascenseur, bénéficiant d'une varangue de 7m², une salle d'eau avec coin buanderie, séparée... Voir plus
53.5 m²
2 pièce(s)
1 chambre(s)
1 sde
Fiche technique du bien
Bilan énergétique
Les informations sur les risques auxquels ce bien est exposé sont disponibles sur le site Géorisques : www.georisques.gouv.fr
Simuler votre prêt immobilier avec notre partenaire
Le quartier
Découvrez d’autres biens dans le quartier
Les horaires
Lundi
08h30 - 12h30 / 14h30 - 17h30
Mardi
08h30 - 12h30 / 14h30 - 17h30
Mercredi
08h30 - 12h30 / 14h30 - 17h30
Jeudi
08h30 - 12h30 / 14h30 - 17h30
Vendredi
08h30 - 12h30 / 14h30 - 17h30
Samedi
08h30 - 12h30
Dimanche
Fermé
