Vitry-sur-Seine - Duplex familial T6 avec jardin et terrasse au coeur du Grand Paris Ardoines

VITRY SUR SEINE 94400
369 500 € *

* Honoraires à la charge du vendeur

Proposé par votre agence :

47 Avenue de l'Abbé Roger Derry

94400 VITRY-SUR-SEINE

Réf : AG-242
Guy Hoquet Vitry-sur-Seine, n°1 des ventes sur la commune en 2024 et 2025 (source MeilleursAgents) vous propose, à seulement quelques minutes du futur pôle multimodal des Ardoines (RER C, future ligne 15 du Grand Paris Express, TZen5), découvrez ce r... Voir plus
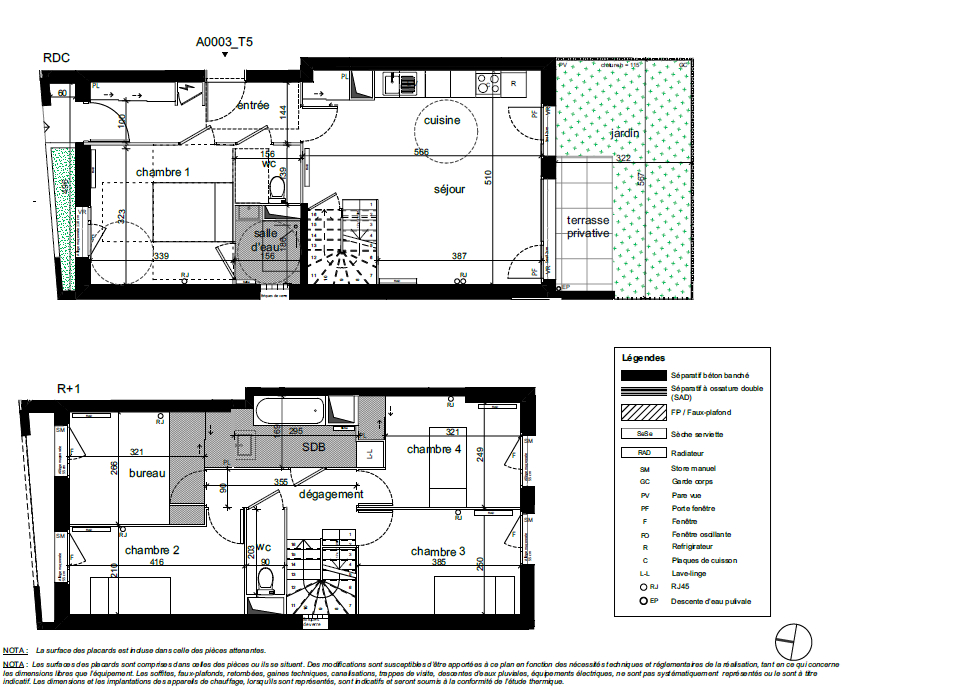
98.4 m²
6 pièce(s)
5 chambre(s)
1 sdb
1 sde
2 parking(s)
Vitry-sur-Seine - Duplex familial T6 avec jardin et terrasse au coeur du Grand Paris Ardoines

Descriptif

Réf : AG-242
Guy Hoquet Vitry-sur-Seine, n°1 des ventes sur la commune en 2024 et 2025 (source MeilleursAgents) vous propose, à seulement quelques minutes du futur pôle multimodal des Ardoines (RER C, future ligne 15 du Grand Paris Express, TZen5), découvrez ce r... Voir plus
98.4 m²
6 pièce(s)
5 chambre(s)
1 sdb
1 sde
2 parking(s)

Fiche technique du bien

Nombre étages
4
Bien en copropriété
Non
Nb Lots Copropriété
132
Charges annuelles (ALUR)
3600 €
Procédures diligentées c/ syndicat de copropriété
Pas de procédure en cours
Jardin
Oui
Année construction
2025
Neuf - Ancien
Récent
Fenêtres
PVC Double Vitrage
Salle(s) de bains
1
Salle(s) d'eau
1
WC
2
Cuisine
Ouverte
Exposition Séjour
SUD-EST
Type Chauffage
Collectif
Mécanisme Chauffage
Radiateur
Mode Chauffage
Chauffage de ville
Eau chaude
Collective
Nombre de terrasse
1
Type de Stationnement
Sous-Sol
Nombre places parking
2
Piscine
Non
Accès handicapés
Oui
Sous-sol
Non
Gardien
Non
Date ERP
18/05/2025
Diagnostic Energétique
Oui
Valeur consommation énergie finale
76 kWh/m2 par an
Conso Energ
80 kWh/m2 par an
Surface terrain
14 m2

Bilan énergétique

Note : B
Logement extrêmement performant
Logement extrêmement peu performant
passoire énergétique
consommation (énergie primaire) 80 kWh /m².an 76 kWh /m².an d'énergie finale
émissions (gaz à effet de serre) 9* kg CO₂/m².an
Note : B
* Dont émissions de gaz à effet de serre
peu d'émissions de CO₂
émissions de CO₂ très importantes
9 kg CO₂/m².an
Les informations sur les risques auxquels ce bien est exposé sont disponibles sur le site Géorisques : www.georisques.gouv.fr
Estimation du coût annuel en énergie pour un usage standard entre 626€ et 847€

Simuler votre prêt immobilier avec notre partenaire Meilleurtaux

Le quartier

Découvrez d’autres biens dans le quartier

47 Avenue de l'Abbé Roger Derry

94400 VITRY-SUR-SEINE

Guy Hoquet

Les horaires

Lundi
09h30 - 19h00
Mardi
09h30 - 19h00
Mercredi
09h30 - 19h00
Jeudi
09h30 - 19h00
Vendredi
09h30 - 19h00
Samedi
09h30 - 19h00
Dimanche
Fermé