Appartement 2 pièces meublé à louer à Paris - 41.40 m²
PARIS 75014
1 383 € / mois
charges comprises *
Zone soumis à l'encadrement des loyers
Loyer de base : 1320 €/mois
Loyer de référence majoré (loyer de base à ne pas dépasser) : 1333.08 €/mois
* dont charges récupérables : 63 € / mois
Dépôt de garantie : 2640 €
Honoraires charges locataires: 620 € TTC
dont honoraires d'état des
lieux: 124 € TTC.
Proposé par votre agence :
164 Rue d'Alésia
75014 Paris
Réf : L1061
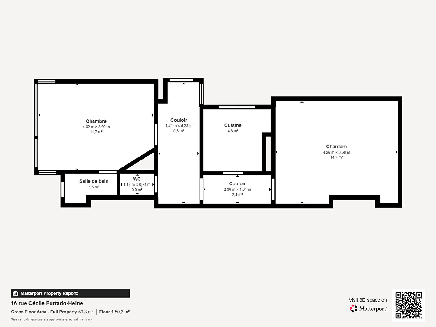
À louer : appartement de 2 pièces situé au 3ème étage d'un immeuble construit en 1905, dans le quartier animé de Paris. D'une surface de 41.40 m², cet appartement comprend une entrée un séjour donnant sur un balcon, une chambre, une salle d'eau et u... Voir plus
41.4 m²
2 pièce(s)
1 chambre(s)
1 sde
Appartement 2 pièces meublé à louer à Paris - 41.40 m²
Descriptif
Réf : L1061
À louer : appartement de 2 pièces situé au 3ème étage d'un immeuble construit en 1905, dans le quartier animé de Paris. D'une surface de 41.40 m², cet appartement comprend une entrée un séjour donnant sur un balcon, une chambre, une salle d'eau et u... Voir plus
41.4 m²
2 pièce(s)
1 chambre(s)
1 sde
Fiche technique du bien
Bilan énergétique
Logement extrêmement performant
Logement extrêmement peu performant
passoire énergétique
consommation (énergie primaire)
265.1
kWh
/m².an
259 kWh
/m².an
d'énergie finale
émissions (gaz à effet de serre)
57*
kg CO₂/m².an
* Dont émissions de gaz à effet de serre
peu d'émissions de CO₂
émissions de CO₂ très importantes
57
kg CO₂/m².an
Les informations sur les risques auxquels ce bien est exposé sont disponibles sur le site Géorisques : www.georisques.gouv.fr
Estimation du coût annuel en énergie pour un usage standard entre 840€ et 1150€ au 01/01/2021
Le quartier
Découvrez d’autres biens dans le quartier
164 Rue d'Alésia
75014 Paris
Les horaires
Lundi
09h30 - 19h30
Mardi
09h30 - 19h30
Mercredi
09h30 - 19h30
Jeudi
09h30 - 19h30
Vendredi
09h30 - 19h30
Samedi
09h30 - 19h30
Dimanche
Fermé
