F2 de 32 m² avec ascenseur
SAINT DENIS 93200
179 900 € *
* Honoraires à la charge du vendeur
Proposé par votre agence :
40 rue Gabriel Péri
93200 SAINT DENIS
Réf : 4548
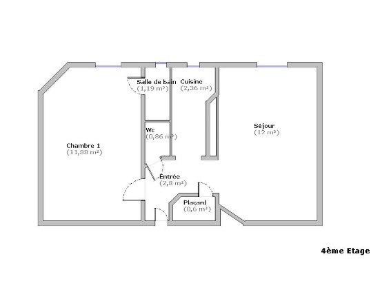
Idéalement situé, entre le Métro Porte de Paris et la gare de Saint-Denis, face au Square de Geyter. Au 4ème étage avec ascenseur d'un bel immeuble bourgeois, magnifique F2 de 32m² avec moulures et soubassements remarquables. Un agencement en étoile... Voir plus
32 m²
2 pièce(s)
1 chambre(s)
1 sde
F2 de 32 m² avec ascenseur
Descriptif
Réf : 4548
Idéalement situé, entre le Métro Porte de Paris et la gare de Saint-Denis, face au Square de Geyter. Au 4ème étage avec ascenseur d'un bel immeuble bourgeois, magnifique F2 de 32m² avec moulures et soubassements remarquables. Un agencement en étoile... Voir plus
32 m²
2 pièce(s)
1 chambre(s)
1 sde
Fiche technique du bien
Bilan énergétique
Logement extrêmement performant
Logement extrêmement peu performant
passoire énergétique
consommation (énergie primaire)
328
kWh
/m².an
142 kWh
/m².an
d'énergie finale
émissions (gaz à effet de serre)
10*
kg CO₂/m².an
* Dont émissions de gaz à effet de serre
peu d'émissions de CO₂
émissions de CO₂ très importantes
10
kg CO₂/m².an
Les informations sur les risques auxquels ce bien est exposé sont disponibles sur le site Géorisques : www.georisques.gouv.fr
Estimation du coût annuel en énergie pour un usage standard entre 670€ et 950€
Simuler votre prêt immobilier avec notre partenaire
Le quartier
Découvrez d’autres biens dans le quartier
40 rue Gabriel Péri
93200 SAINT DENIS
Les horaires
Lundi
09h30 - 19h30
Mardi
09h30 - 19h30
Mercredi
09h30 - 19h30
Jeudi
09h30 - 19h30
Vendredi
09h30 - 19h30
Samedi
09h30 - 18h00
Dimanche
Fermé
