BRETEUIL
BRETEUIL 27160
138 000 € *
* Honoraires à la charge du vendeur
Proposé par votre agence :
33 place Laffitte
27160 BRETEUIL SUR ITON
Réf : 1540
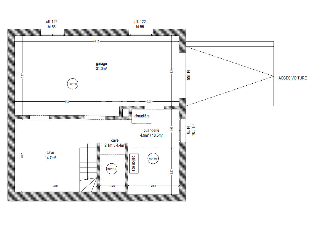
BRETEUIL - 500 m des commerces - Maison d'habitation sur sous-sol de 100 m² comprenant : entrée, cuisine, séjour (31 m²) avec cheminée insert, 3 chambres (dont 1 au RDC), bureau, salle d'eau, salle de bains avec WC et WC avec lave-mains.
Sous-sol de... Voir plus
100 m²
5 pièce(s)
3 chambre(s)
2 sde
BRETEUIL
Descriptif
Réf : 1540
BRETEUIL - 500 m des commerces - Maison d'habitation sur sous-sol de 100 m² comprenant : entrée, cuisine, séjour (31 m²) avec cheminée insert, 3 chambres (dont 1 au RDC), bureau, salle d'eau, salle de bains avec WC et WC avec lave-mains.
Sous-sol de... Voir plus
100 m²
5 pièce(s)
3 chambre(s)
2 sde
Fiche technique du bien
Bilan énergétique
Logement extrêmement performant
Logement extrêmement peu performant
passoire énergétique
consommation (énergie primaire)
396
kWh/m².an
émissions (gaz à effet de serre)
81*
kg CO₂/m².an
* Dont émissions de gaz à effet de serre
peu d'émissions de CO₂
émissions de CO₂ très importantes
81
kg CO₂/m².an
Les informations sur les risques auxquels ce bien est exposé sont disponibles sur le site Géorisques : www.georisques.gouv.fr
Estimation du coût annuel en énergie pour un usage standard entre 3870€ et 5300€ au 01/01/2023
Logement à consommation énergétique excessive
Simuler votre prêt immobilier avec notre partenaire
Le quartier
Découvrez d’autres biens dans le quartier
33 place Laffitte
27160 BRETEUIL SUR ITON
Les horaires
Lundi
Fermé
Mardi
09h15 - 12h15 / 14h00 - 18h00
Mercredi
09h15 - 12h15 / 14h00 - 18h00
Jeudi
09h15 - 12h15 / 14h00 - 18h00
Vendredi
09h15 - 12h15 / 14h00 - 18h00
Samedi
09h15 - 12h15 / 14h00 - 18h00
Dimanche
Fermé
