Les Allées de la plage
BREST 29200
by Sphère Immo
3 à 4 pièces de 62 à 107 m²
249 000 à 355 000 €
1er trimestre 2027
Logement neuf
Une adresse d’exception entre terre et mer
C’est au cœur du quartier Kerlinou, à Brest, que se dresse la résidence Les Allées de la Plage.
Ce site remarquable, véritable belvédère sur la rade de Brest, surplombe la plage de Sainte-Anne du Portzic,... Voir plus
Descriptif
Une adresse d’exception entre terre et mer
C’est au cœur du quartier Kerlinou, à Brest, que se dresse la résidence Les Allées de la Plage.
Ce site remarquable, véritable belvédère sur la rade de Brest, surplombe la plage de Sainte-Anne du Portzic,... Voir plus
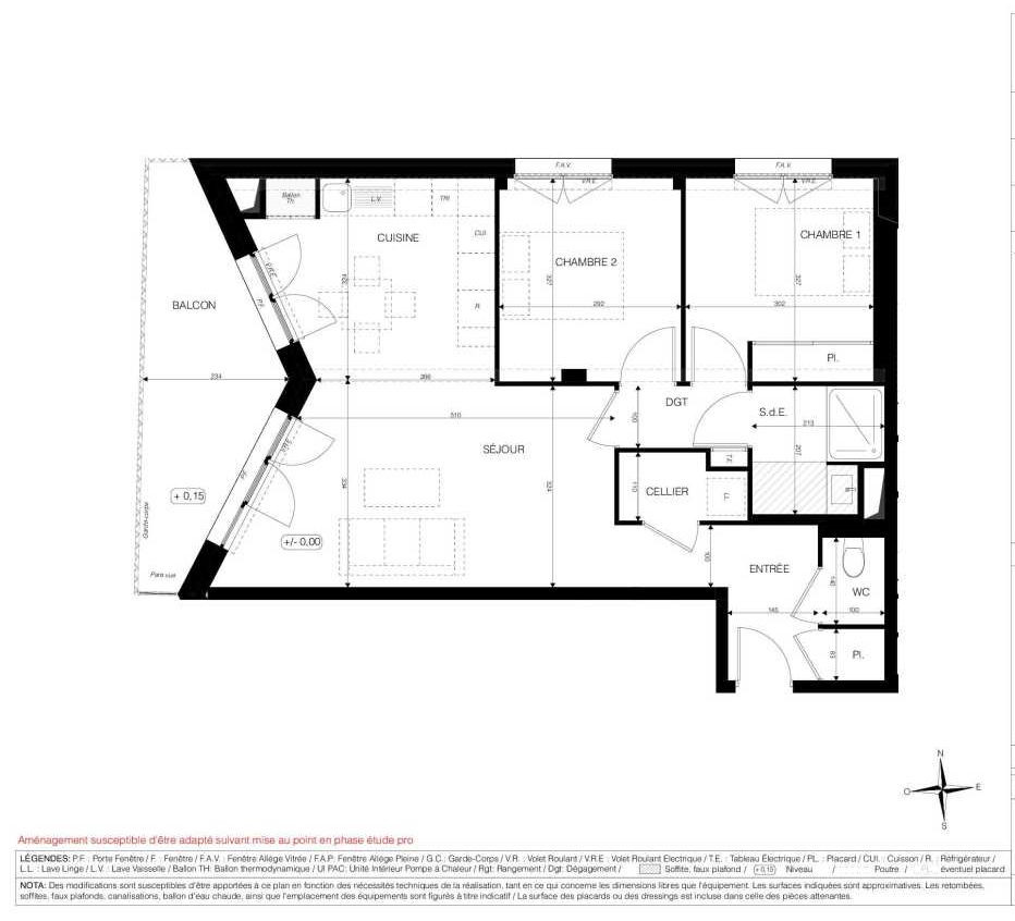
Disponibilités et prix des logements neufs
T3 à partir de 249 000 €
N°
Plan
Surface
Etage
Orientation
Parking
Disponibilité
En savoir plus
T4 à partir de 325 000 €
N°
Plan
Surface
Etage
Orientation
Parking
Disponibilité
En savoir plus
L'ensemble des éléments contenus sur le site www.guy-hoquet.com ne sont pas contractuels : les informations présentées font l'objet d'un traitement automatisé en provenance de nos partenaires promoteurs et sont susceptibles de comporter des erreurs. Les résidences et les logements présentés sur www.guy-hoquet.com ne valent que pour énumération et leur disponibilité n'est pas garantie. Les particularités des logements présentés sont susceptibles d'être modifiées à tout moment tant pour des raisons techniques qu'administratives : les prix, les rentabilités, les dates de livraison, les dimensions annoncées des logements, les plans et les descriptifs techniques ne sont fournis qu'à titre indicatif. Le non-respect des engagements de location entraîne la perte des incitations fiscales.
